- Woonoppervlakte
- Circa 83 m²
- Inhoud
- Circa 249 m³
- Bouwjaar
- Gebouwd in 1970
- Aantal kamers
- 3 kamers (2 slaapkamers)
COMFORTABEL WONEN IN EEN CHARMANT APPARTEMENT OP EEN RUSTIGE EN CENTRALE LOCATIE IN MAASTRICHT!
Dit appartement uit 1970 is gelegen aan de Eenhoornsingel 87-A, in een rustige woonwijk vlakbij het winkelcentrum Brussele Poort. Dankzij de beschutte ligging geniet u hier van een prettige en beschermde woonomgeving, terwijl alle voorzieningen op loopafstand bereikbaar zijn.
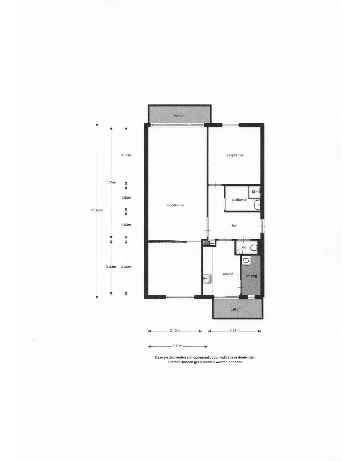
De ruime woonkamer van 41m² is een doorzonkamer, waardoor er veel natuurlijk licht binnenvalt en u geniet van een fijne leefruimte die naar eigen wens in te richten is.
De gesloten keuken van 9m² is uitgerust met een elektrische kookplaat en een afzuigkap, wat zorgt voor een moderne en functionele kookomgeving. De keuken is netjes onderhouden en klaar voor gebruik.
Er is een toilet van 2m² met een fontein en een urinoir, wat het comfort in het dagelijks gebruik verhoogt.
Het appartement beschikt over twee slaapkamers van elk 13m², die beide ruim genoeg zijn voor een tweepersoonsbed en kastopstellingen.
De badkamer van 4m² is voorzien van een afzonderlijke douche, een thermostatische kraan, een wastafel met meubel, een stopcontact en een eengreepsmengkraan, waarmee comfortabel douchen en voorbereiden gegarandeerd is.
Neem snel contact met ons op voor een bezichtiging en maak van dit appartement jouw nieuwe thuis!
Overdracht
- Vraagprijs
- € 225.000 k.k.
- Status
- Verkocht
- Bijdrage VvE
- € 312,91 per maand
Bouw
- Object type
- Galerijflat (appartement)
- Soort bouw
- Bestaande bouw
- Bouwjaar
- 1970
Oppervlakte en inhoud
- Woonoppervlakte
- 83 m²
- Inhoud
- 249 m³
Indeling
- Aantal kamers
- 3 kamers (2 slaapkamers)
- Aantal badkamers
- 1 badkamer en 1 apart toilet
- Badkamervoorzieningen
- Douche, wastafel, en wastafelmeubel
- Aantal woonlagen
- 1 woonlaag
- Gelegen op
- 2e woonlaag
- Voorzieningen
- CCTV en lift
Energie
- Energielabel
- E
- Energielabel registratie
- 05-11-2018
- Verwarming
- Blokverwarming
Buitenruimte
- Ligging
- Beschutte ligging en in woonwijk
- Balkon / dakterras
- Balkon aanwezig
Bergruimte
- Schuur / berging
- Inpandig
Parkeergelegenheid
- Soort parkeergelegenheid
- Op eigen terrein
VvE checklist
- Inschrijving KvK
- Ja
- Jaarlijkse vergadering
- Ja
- Periodieke bijdrage
- Ja (€ 312,91 per maand)
- Reservefonds aanwezig
- Ja
- Onderhoudsplan
- Ja
- Opstalverzekering
- Ja
Energieverbruik in Maastricht
Energielabel deze woning
Energielabel E
Publicatie energielabel: 05-11-2018
Stroomverbruik per jaar
(Gemiddelde appartement in Maastricht)
Gasverbruik per jaar
(Gemiddelde appartement in Maastricht)
* Cijfers zijn afkomstig van het CBS en bedoeld als indicatie en kunnen verschillen voor deze woning
Indicatie hypotheeklasten
Eigen inleg:
Spaargeld / overwaarde
Rente:
Laagste 10-jaars rente
Laagste 10-jaars rente
2,76% - Centraal Beheer Groen... - NHG
2,98% - Centraal Beheer Groen... - 80%
Laagste 20-jaars rente
3,19% - Centraal Beheer Groen... - NHG
3,31% - Centraal Beheer Groen... - 80%
Laagste 30-jaars rente
3,34% - Centraal Beheer Groen... - NHG
3,47% - Centraal Beheer Groen... - 80%
Hypotheek:
Bruto maandlasten: € 0 p/m
Netto maandlasten: € 0 p/m
Hoe berekenen we dit?
Het rentepercentage is gebaseerd op de laagste 10-jaars vaste rente voor één hypotheekdeel. De vermelde rente (2.76% met NHG) is gecontroleerd op 24-09-2025. Deze berekening is gebaseerd op een annuïteitenhypotheek die volledig wordt afgelost, waarbij de maandlasten gedurende de gehele looptijd gelijk blijven. De werkelijke rente en netto maandlasten kunnen variëren, afhankelijk van uw persoonlijke situatie en de hypotheekverstrekker. Raadpleeg een financieel adviseur voor een nauwkeurige berekening en advies. Aan deze berekening kunnen geen rechten worden ontleend; het dient enkel als indicatie.
Documentatie
Kadastrale kaart
Leefomgeving
Plattegronden PDF
BAG uittreksel
Brochure
Bezichtiging
Bod uitbrengen
Waardebepaling
Zoekopdracht
Alles downloaden
Zonnegrenzen bekijken
Op de kaart
Inwoners in Maastricht
Cijfers voor postcodegebied 6216
- Totaal aantal inwoners
- 8555 inwoners
- Mannen
- 46%
- Vrouwen
- 54%
Inwoners in Maastricht
Cijfers voor postcodegebied 6216
- tot 15 jaar
- 8%
- 15 tot 25 jaar
- 29%
- 25 tot 35 jaar
- 24%
- 45 tot 65 jaar
- 19%
- 65 en ouder
- 21%
Huishoudens in Maastricht
Cijfers voor postcodegebied 6216
- Eenpersoons zonder kinderen
- 68%
- Meerpersoons zonder kinderen
- 19%
- Huishoudens zonder kinderen
- 87%
Huishoudens in Maastricht
Cijfers voor postcodegebied 6216
- Huishoudens met één kind
- 4%
- Huishoudens met meerdere kinderen
- 9%
- Huishoudens met kinderen
- 13%
Woningen in Maastricht
Cijfers voor postcodegebied 6216
- Woningen voor 1945
- 1%
- Woningen tussen 1945 en 1965
- 48%
- Woningen tussen 1965 en 1975
- 40%
- Woningen tussen 1975 en 1985
- 1%
- Woningen tussen 1985 en 1995
- 1%
Woningen in Maastricht
Cijfers voor postcodegebied 6216
- Woningen tussen 1995 en 2005
- 12%
- Woningen tussen 2005 en 2015
- 1%
- Woningen na 2015
- 1%
- Huurwoningen
- 50%
- Koopwoningen
- 50%
Overige in Maastricht
Cijfers voor postcodegebied 6216
- Gemiddelde WOZ waarde
- € 180.000,-
- Personen onder de 65 met uitkering
- 9%
Overige in Maastricht
Cijfers voor postcodegebied 6216
- Adressen per km²
- 2556
- Stedelijkheid (schaal 1 op 5)
- 100%
Korte feiten over Maastricht
Maastricht is een stad en gemeente in het zuiden van Nederland. Het is de hoofdstad van de provincie Limburg en telt 120.837 inwoners (31 januari 2022, bron: CBS). Het is hiermee de grootste gemeente van de provincie Limburg.
Housing 4 You
Indien u vragen heeft of u wilt een bezichtiging inplannen, dan kunt u gebruik maken van het formulier hiernaast. Er zal daarna op korte termijn contact met u worden opgenomen.
Contact opnemen
Housing 4 You – Uw partner in vastgoed
Bij Housing 4 You staat de klant centraal. Wij denken mee, luisteren naar uw wensen en zorgen voor maatwerk in iedere situatie.
Ons werkgebied bestrijkt heel Zuid-Limburg – van Maastricht en Sittard tot Heerlen en omgeving. Wij ondersteunen bij huren, verhuren, beheer én verkoop van woningen en appartementen. Ook beleggers kunnen bij ons terecht voor deskundige aankoopbegeleiding en advies.
Dankzij onze jarenlange ervaring en een uitgebreid netwerk weten wij hoe u het beste rendement uit uw vastgoed haalt. Dagelijks bereiken wij een groot aantal woningzoekenden, waaronder expats, medewerkers van multinationals, universiteiten, defensie en relocation-bureaus, maar ook particulieren die een koopwoning zoeken.
Wij zijn continu op zoek naar nieuwe woningen die wij in de verkoop of verhuur mogen aanbieden.
Daarnaast nemen wij het beheer van uw vastgoed graag uit handen. De huurmarkt verandert snel en vraagt om een professionele en actuele aanpak. Wij volgen de wet- en regelgeving op de voet en zorgen dat uw belangen optimaal behartigd worden.
Onze missie is om duurzame relaties op te bouwen met zowel verhuurders als huurders, waarbij service en betrouwbaarheid altijd vooropstaan.
Wilt u meer weten over onze diensten of overweegt u om uw woning te verhuren?
Neem gerust contact met ons op:
Met vriendelijke groet,
Uw makelaar, John van ’t Klooster
Nieuwste reviews
-
Lydia Jans
Zeer goede ervaring gehad met Housing4You. Wij zochten als internationaal stel op korte termijn een woning in Maastricht, maar hadden, gezie...
-
Max
Beoordeeld met een 5
-
Chenchen Fu
Ik huur een studio in de Boschstraat van John. Het is vrij duur, maar toen ik er kwam wonen, was er geen schoonmaak van de totale studio. Hi...